Wiry - Graniczna

Na ul. Granicznej w Wirach powstały dwa niebanalne domy jednorodzinne w zabudowie bliźniaczej. Domy wyróżniają się nowoczesną architekturą, prostotą i elegancją wykonaną z dbałością o szczegóły.

Głównymi przesłankami przy tworzeniu projektu była funkcjonalność wnętrza oraz oryginalna architektura – tak, by bryła budynku nie wglądała jak typowy bliźniak. Jednocześnie w pełni wykorzystane zostały walory i układ dużej działki

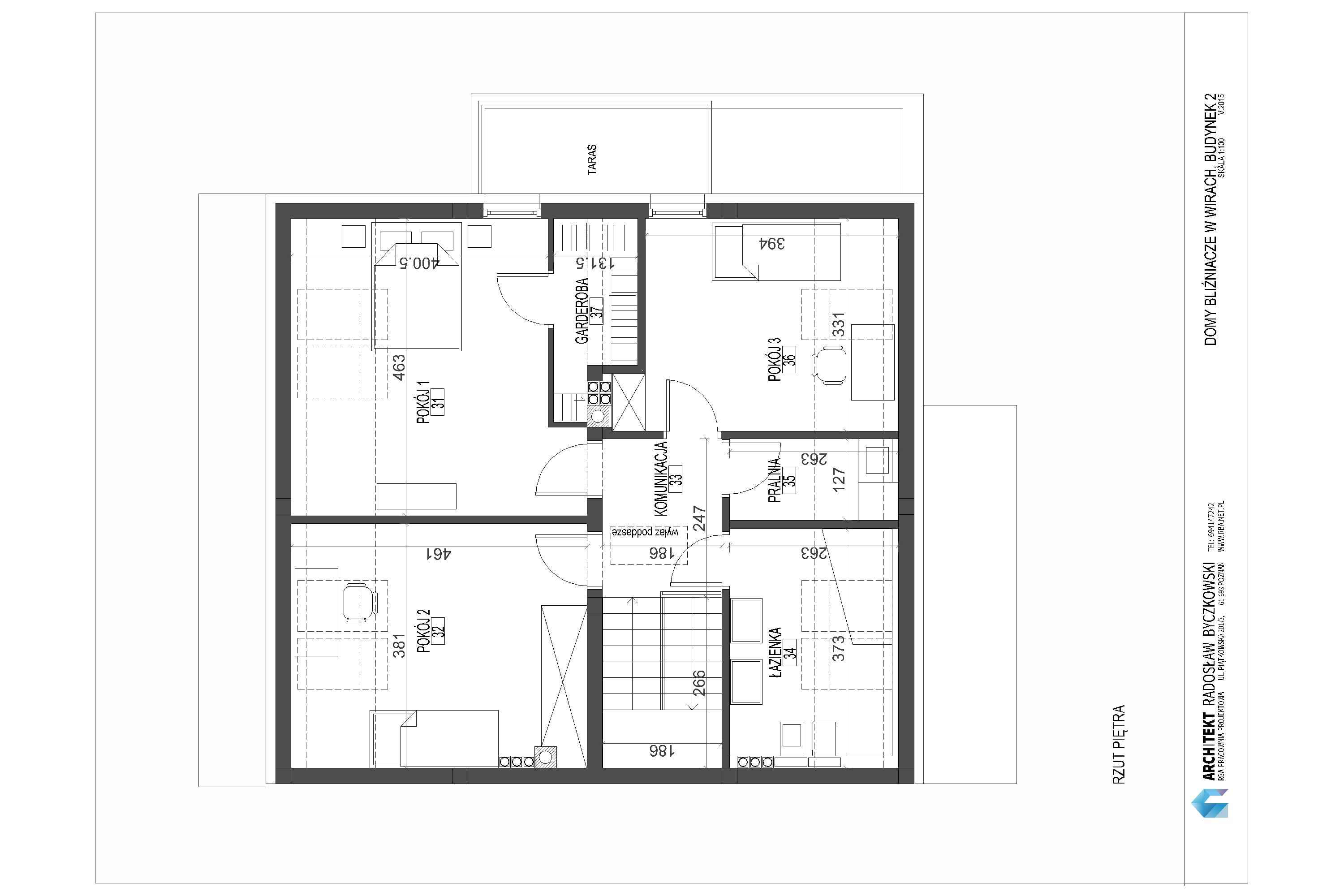
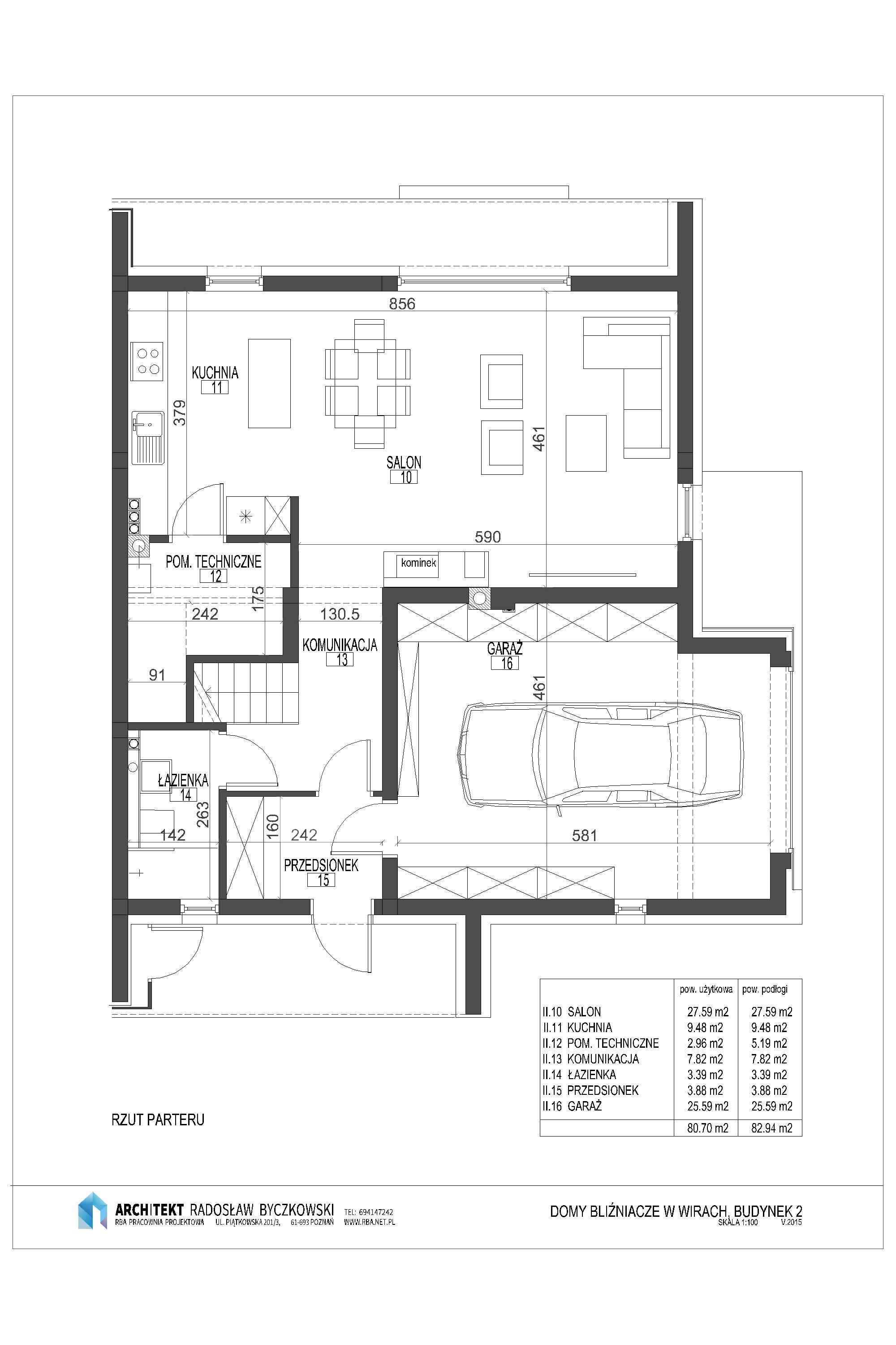
Dom o powierzchni 156,13 m2 zaplanowany został na dwóch poziomach, które w sposób czytelny dzielą dom na strefę dzienną i strefę nocną.

wykończenie wnętrza

Strefa dzienna na parterze składa się z przestronnego salonu z miejscem na kominek i funkcjonalnej kuchni z jadalnią, pomieszczenia technicznego /skrytki przykuchennej, łazienki z prysznicem (ogrzewanie podłogowe), przedsionka z ogrzewaniem podłogowym oraz komunikacji. Ogromnym walorem jest duży garaż, półtorastanowiskowy. Na tyłach i z boku domu znajduje się taras ze słonecznym ogrodem, na który można wyjść zarówno z salonu, jak i kuchni. Strefa nocna na piętrze to trzy pokoje sypialne w tym jeden z garderobą, przestronna łazienka z parnią oraz komunikacja. Tu też znajduje się wyjście na duży, ocieplany strych/poddasze. Dwa pokoje posiadają wyjście na taras.

wykończenie zewnętrzne

Dom został oddany do użytku w stanie deweloperskim o podwyższonym standardzie: ocieplenie o lepszym współczynniku termoizolacyjnym, pełne deskowanie dachu dodatkowo ocieplonego wełną mineralna, rynny tytan-cynk, piec z zasobnikiem wody, dylatacja między domami, tradycyjne - cementowo - wapienne tynki, ocieplenie strychu, lepsze materiały wykończeniowe, więcej punktów elektro-świetlnych duże doświetlenie wieloma oknami z elektrycznymi roletami. Dom położony jest na powierzchni ok. 560 m2 i otoczony jest rozległym ogrodem. Wybrukowany został podjazd, tarasy, podejście do furtki. Ogrodzony siatką plecioną a tyłach, a z przodu specjalnie zamawianym płotem metalowym.

zestawienie powierzchni

PARTER:
PIĘTRO:
STRYCH: ok.34m2: