Daszewice, Poznańska

Kolejna nasza realizacja projektu "nowoczesność" powstała w Daszewicach przy u Poznańskiej. Dom dobrze wpisał się w zabudowę jednorodzinną ulicy.

.

Architektura budynku to połączenie nowoczesnej prostoty i elegancji doskonale pasującej do otoczenia. We wnętrzu domu zastosowany został funkcjonalny podział na strefę dzienną – parter z salonem, kuchnią i jadalnią oraz strefę nocną - piętro z sypialniami.

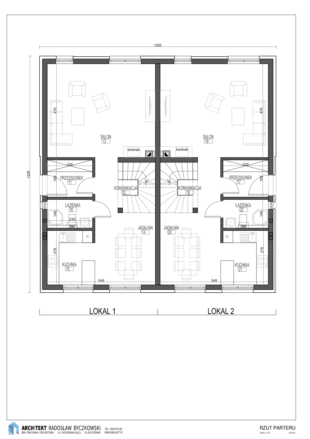
Parter każdego lokalu składa się z przestronnego salonu z przygotowanym miejscem na kominek oraz bardzo ustawnej kuchni z dużą jadalnią, łazienki (z miejscem na prysznic), przedsionka wejściowego z miejscem na szafę oraz holu. Na piętrze mamy trzy obszerne sypialnie - największa z możliwością zabudowy garderobą, łazienkę oraz korytarz - komunikację z wejściem na duży stryszek (ok. 28m2). Lokale mają powierzchnie113 m2 z lewej strony i 115m2 z prawej strony budynku. Ponadto do każdego domu przylega ogród o powierzchni ok 380m2.

wykończenie wnętrza

Tynki maszynowe, schody i posadzka betonowa, okna PCV z roletami zewnętrznymi (w salonie rolety elektryczne), okna dachowe firmy Fakro. Zainstalowano grzejniki stalowe, natomiast w łazienkach dodatkowo ogrzewanie podłogowe. Dopełnieniem instalacji grzewczej jest piec gazowy. W całości została przygotowana instalacja elektryczna oraz wodno-kanalizacyjna pod założenie armatury. Dom przygotowany jest również do założenia instalacji alarmowej, domofonowej oraz TV sat (w każdym pokoju).

wykończenie zewnętrzne

Dach pokryty dachówką cementową Brass z rynnami, parapety, ocieplenie styropianem 15cm + tynki akrylowe, wybrukowane zostało wejście oraz chodnik do furtki oraz podjazd, ogrodzenie z siatki plecionej na tyłach i bokach domu, z frontu siatka panelowa, brama i furtka z podejściami elektrycznymi). Podwójne, dwustanowiskowe wiaty na samochody.

zestawienie powierzchni

PARTER:
  • salon 25.77 m2
  • kuchnia 6.48 m2
  • jadalnia 11.05 m2
  • przedsionek 4.26 m2
  • komunikacja 7.3 m2
  • łazienka 3.28 m2
PIĘTRO:
  • pokój 19.67 m2
  • pokój 13.08 m2
  • pokój 12.24 m2
  • łazienka 5.01 m2
  • komunikacjs 6.81 m2
STRYSZEK:
  • stryszek 28 m2

uwagi

Przewidywany termin zakończenia - I kwartał 2017. Istnieje możliwość oglądnięcia realizacji tego samego projektu w Daszewicach i Dachowie. Kupujący nie płaci 2% podatku PCC !!!